Verma Medical Trust
Completed while Studio Manager at Serie Architects Mumbai, 2008-09
Completed while Studio Manager at Serie Architects Mumbai, 2008-09
This project was designed with the Serie Architects team, based in Mumbai and London. As Studio Manager for the Mumbai studio, my role in the project included 3d modeling, architectural design, space planning and presentation drawings. The project was designed and modeled in Rhino 3d, and exported to AutoCAD for 2d drawings.

Rendering showing facade scheme
© Serie Architects
© Serie Architects

As-built photo showing elevation blocks
© Serie Architects
© Serie Architects

As-built photo showing elevation blocks
© Serie Architects
© Serie Architects
The proposal imagines a modulated skin that performs as a series of balconies, storage spaces, sun-shades and window-cabins. The depth of the skin thus is thickened to six feet to enable balconies, break-out spaces, private cabins and tiered seating for an auditorium.

Interior rendering showing open office space with full-height glazing
© Serie Architects
© Serie Architects

Interior rendering showing facade pattern wrapping around walls
© Serie Architects
© Serie Architects

Interior rendering showing projecting elevation blocks from the interior
© Serie Architects
© Serie Architects
On the base of the block, the same primary modules are differentiated to create outdoor furniture, grass-basins and pavement modules. This promotes the aggregation of specific activities on the deck level according to the positions and densities of the various modules.

Front elevation and partial section through facade
© Serie Architects
© Serie Architects

Ground level floor plan
© Serie Architects
© Serie Architects

Second level floor plan
© Serie Architects
© Serie Architects

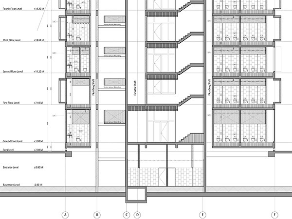
Section through facade, stair and toilets
© Serie Architects
© Serie Architects